2023 24th Ave E Seattle, WA 98112
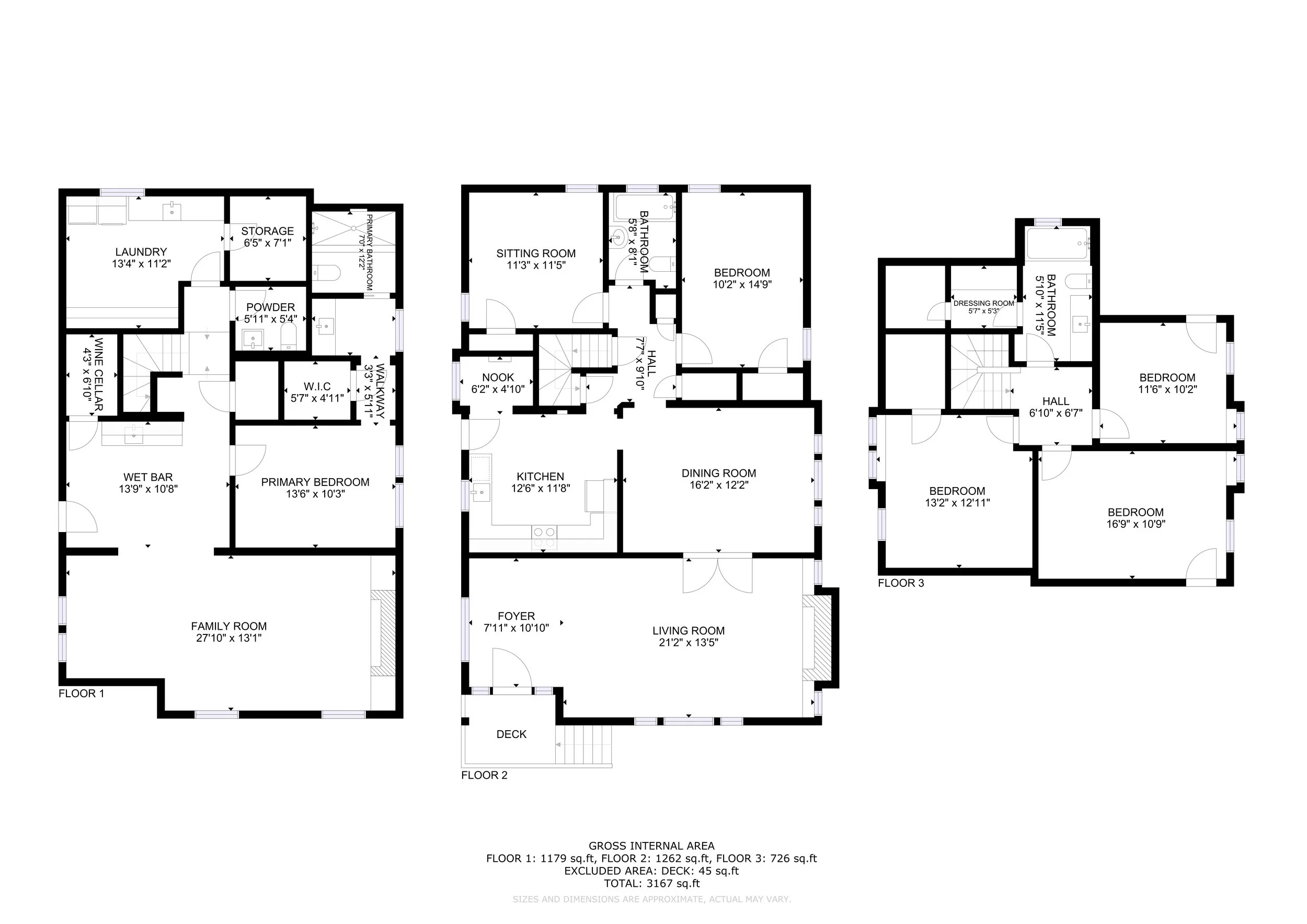
Captivating Montlake Craftsman! All the enchanting details have been thoughtfully maintained and restored in this like-new home. New electrical, windows, furnace, A/C, plumbing, gas conversion and roof leave nothing left to budget for. The remodeled lower level presents ADU options, complete with a private entrance, bedroom with en-suite bath, expansive living room, temperature-controlled wine cellar, and an oversized laundry room. The main level boasts 2 bedrooms, full bath, spacious dining, kitchen with nook and living room which showcases hardwood floors, an original Bachelder tiled fireplace and elegant paned glass french doors with rich millwork and detailed crown molding. Upstairs, you'll find a stunningly remodeled bathroom, 3 generous bedrooms with walk-in closets. Garage + 3 off-street parking spaces make hosting an ease. Just steps from Montlake Elem, Arboretum, eateries, light rail and UW campus. Welcome Home! Home Pre-Inspected.
5 Bedrooms + Den
3.25 Bathrooms
3,302 Sq Ft
Year Built 1921
OFFERED AT $1,445,000
MLS #2268848
PHOTOGRAPHY

















































3-D MATTERPORT